





Inne M18 Paris
Glaspardörrar med spärrlås och överfönster
Inne glaspardörrar med spärrlås och överfönster består av en aktiv dörr samt en passiv dörr samt ett överfönster ovanom dessa. Båda dörrarna öppnas 180 grader åt ett håll. Den passiva dörren kan låsas på plats med hjälp av spärrlås, då den fungerar som en fast panel, som kan låsas upp och vändas ur vägen vid behov. Produkten har stadiga aluminiumkarmar samt dörrblad tillverkade av härdat glas. Produkten levereras med medföljande karmar, gångjärn, båda dörrbladen, ett överfönster, ett handtag, ett motstycke till handtaget samt spärrlås upp och ner för den passiva dörren.
I modellerna New York, Tokyo och Paris är dörrbladen inramade. Tokyo och Paris-modellerna är dessutom utrustade med aluminiumspröjs limmade på glaset.
25 Vardagar
20 års garanti
Dörrkarmen och beroende på modellen dörrbladets ramar tillverkas av aluminium. Beslagen tillverkas av mässingslegering. Aluminiumprofilerna och beslagen pulverlackeras. Färgalternativen är Vit (RAL 9016), Svart (RAL 9005), Sand (RAL 1019), Mocha (RAL 8025) eller Cocoa (RAL 8019). Karmtätningar samt endel tekniska delar är alltid vita (vit och sand) eller svarta (svart, mocha och cocoa).
Produkten tillverkas av 8 mm tjockt härdat säkerhetsglas (EN 12150). Det finns gott om olika glasalternativ att välja mellan. Klarglas, grått, brons samt Mirage. Satinglas fås i olika kulörer (satin, bronssatin och gråsatin)
Satinglasens ena sida har etsats sammetslik medan den andra sidan är slät. Vid val av en produkt med satinglas bör det noteras att glasets etsade yta är känslig för skråmor och fläckar.
Vid val av Mirage-glas bör det noteras att glasets genomskinlighet beror på ljusstyrkan i utrymmet. Då utrymmet bakom glaset är starkt upplyst, verkar glaset genomskinligt, ju mörkare baksidan är, desto kraftigare är glasets spegling.
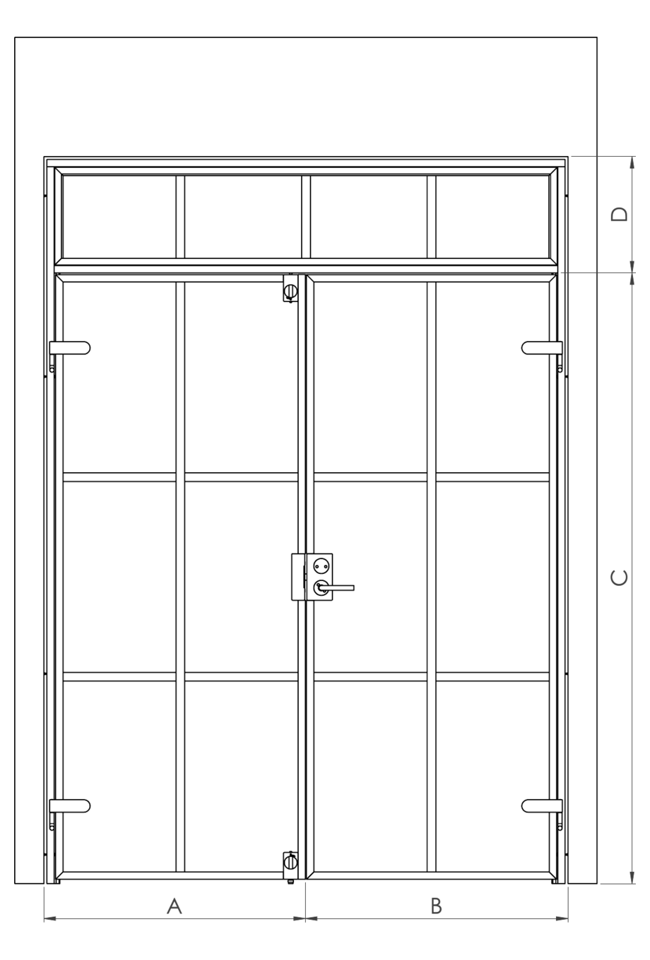
Dörrarna tillverkas enligt angivna mått. Ange bredden och höjden på monteringsöppningen vid beställning. A avser den passiva dörren och B den aktiva dörren. C är dörrarnas höjd och D är överfönstrets andel. Totalt 20 mm monteringsutrymme lämnas mellan produktkarmarna och den angivna monteringsöppningen på sidorna, upptill finns 10 mm. Den fria åtkomstöppningen är 110 mm mindre än bredden på monteringsöppningen, då båda dörrarna är öppna. Karmens djup är 92 mm.
Produkt storlek
The selected product can be installed into the opening the total width of which is 1600mm and the total length 2001mm.:

Dörren kan utrustas med ett toalettvred (tillval). Vredet är svart. Dörren kan också utrustas med andra toalettvred avsedda för den nordiska marknaden.
Produkten levereras med en låskassett, handtag, täckplatta samt motstycke till låset för den passiva dörren. Toalettvred fås som tillval. Handtaget kan ersättas med andra allmänna handtag som finns på den skandinaviska marknaden.
Produkt
Produktkod
Pris
1
Inne M18 Paris
Produktkod
M18-61-000
Pris
0.00 €
2
Passiv dörr
Vit/Klar/A=800 x 2000
Produktkod
C50 61 0000
Pris
1250.00 €
3
Aktiv dörr
Vit/Klar/B=800 x 2000
Produktkod
C51 61 0000
Pris
1250.00 €
4
Upper Window
Vit/Klar=1600 x 1
Produktkod
C52 61 0000
Pris
500.00 €
5
Inne karmar
Vit/Klar=1600 x 2001
Produktkod
C53 61 0000
Pris
0.00 €
6
Maintanance guide
=
Produktkod
059 RL MMMM
Pris
0.00 €
7
Paris -ram
Produktkod
C04 6L 0000
Pris
200.00 €
8
Paris -ram
Produktkod
C04 6L 0000
Pris
200.00 €
9
Paris -ram
Produktkod
C04 6L 0000
Pris
200.00 €
10
INNE SERIES CAMPAIGN 01.10.-30.11.2025
Produktkod
DISCOUNT
Pris
-720.00 €
11
TOTALT
Produktkod
Pris
2880.00 €
The selected product can be installed into the opening the total width of which is 1600mm and the total length 2001mm.:
| EAN: |
|---|



